Das denkmalgeschützute Gebäude wurde 1894 erbaut und verfügt über 12 Wohneinheiten.
Ort
04105 Leipzig
Adresse
Blumenstraße 18
Etage
2
Verfügbar ab
15.01.2026
Denkmalgeschützt
Ja
Baujahr
1894
Zustand
Gepflegt
Beschreibung
Ausstattung
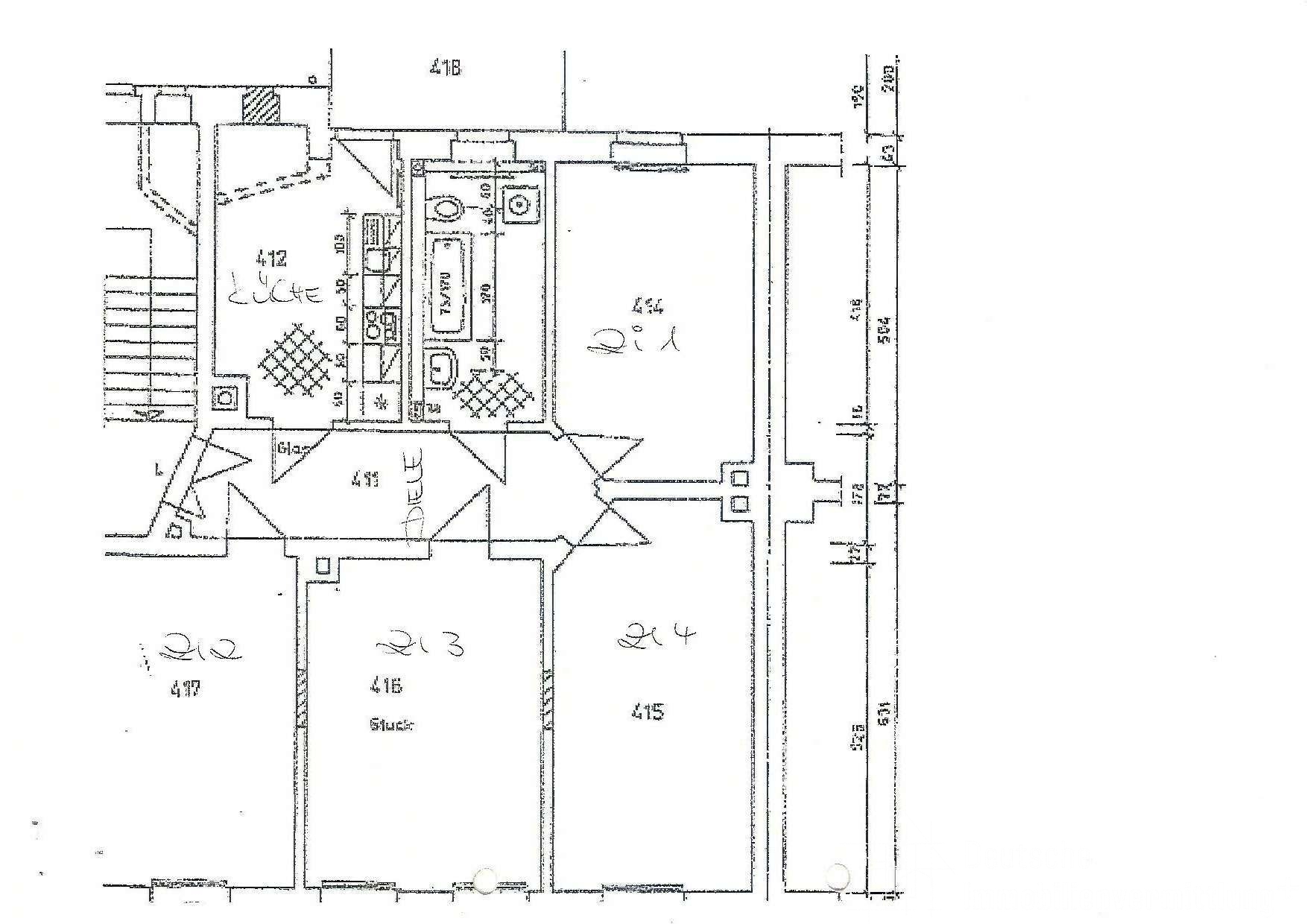
Große 4 Zimmerwohnung im 2. Obergeschoss eines gepflegten Mehrfamilienhauses. Alle Wohnräume sind mit Dielenboden ausgestattet. Neues und modernes Tageslichtbad mit Wanne und Dusche, welches aktuell saniert wird, separate Küche mit Zugang zum hofseitigem Balkon. Die Zimmer verfügen teilweise über Stuckdecken.
*Da die Wohneinheit aktuell saniert wird, handelt es sich bei den Bilder teilweise um Referenzbilder.*
Balkon
Ja
Ausstattung
Standard
Dusche
Ja
Bad mit Badewanne
Ja
Bad mit Fenster
Ja
Dielen
Ja
Personenaufzug
Ja
Keller
Ja
Lage
Das Objekt verfügt über eine gute Anbindung an öffentliche Verkehrsmittel (Buslinien; nahegelegene Straßenbahn-/Tramlinien).
Es gibt Schulen, Kindertagesstätten, Ärzte und Apotheken in der Umgebung. Gastronomie und kulturelle Angebote im nahen Umfeld sind ebenfalls vorhanden.
Deutsche Immobilienvermittlung +
Kontaktieren Sie uns. Wir freuen uns auf ein persönliches Gespräch
Deutsche Immobilienvermittlung Plus GmbH
Essener Str. 110
22419 Hamburg
E-Mail info@divplus.de


