Das Gebäude wurde etwa 1911 erbaut und steht heute unter Denkmalschutz. Die Springerstraße 16 verfügt über einen herrschaftlichen Treppeneingang, einen Aufzug sowie Stellplätze im Hinterhof.
Kontaktdaten
Beschreibung
Ausstattung
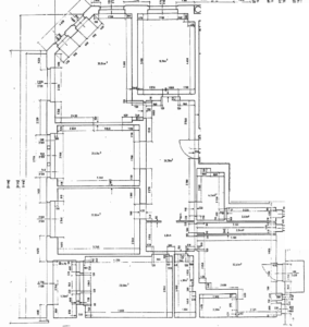
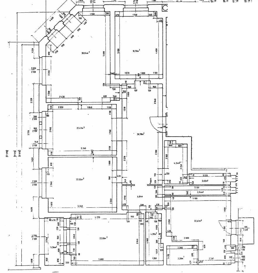
Große 5-Zimmer-Einheit in beliebter Lage. Parkettboden in den Büroräumen, teilweise verfügen die Zimmer über Stuckdecken, modernes Tageslichtbad mit Wanne, Dusche und Doppelwaschtisch, Gäste-WC, 2 praktische Abstellkammern sowie eine Balkon und ein Wintergarten.
Im Souterrain befindet sich eine weitere Gewerbeeinheit welche mit angemietet werden kann. Diese verfügt über ca. 149 m² und würde sich als Lagerraum bzw. Archiv eignen.
Lage
Die Springerstraße befindet sich in einer der beliebtesten Wohngegenden Leipzigs. Die Nähe zum Park und die unmittelbare Nähe zur Innenstadt lassen viel Spielraum für unzählige Freizeitaktivitäten.
Im direkten Umfeld sorgen kleine Geschäfte und Einkaufsmärkte für eine breite Angebotspalette bei der Nahversorgung und überraschen mit manch Außergewöhnlichem. Wandeln Sie in den prächtigen Passagen und tauchen Sie in die freundliche und aufgeschlossene Atmosphäre der Messestadt und ihrer Menschen ein. Auch in Sachen Familienfreundlichkeit ist das Quartier gut aufgestellt. Kindertagesstätte und Schule sind fußläufig gut zu erreichen.
Deutsche Immobilienvermittlung +
Kontaktieren Sie uns. Wir freuen uns auf ein persönliches Gespräch
Deutsche Immobilienvermittlung Plus GmbH
Essener Str. 110
22419 Hamburg
E-Mail info@divplus.de


