Das Gebäude wurde etwa 1911 erbaut und steht heute unter Denkmalschutz. Die Springerstraße 16 verfügt über einen herrschaftlichen Treppeneingang, einen Aufzug sowie Stellplätze im Hinterhof.
Kontaktdaten
Beschreibung
Ausstattung
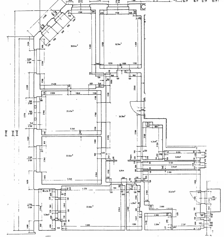
Bei dem zu vermietendenen Objekt handelt es sich um eine große Gewerbeinheit im Erdgeschoss (ca. 193,09 m²) und eine ebenfalls große Gewerbeeinheit im Souterrain (148,83 m²).
Die Einheit im Erdgeschoss verfügt über 5 große Zimmer, eine Küche, ein Gäste-WC ein Tageslichtbad mit Wanne, Dusche, Doppelwaschtisch und Handtuchheizkörper, einen Balkon, einen Wintergarten sowie Abstellräume. Die Fußböden sind mit Laminatboden und Parkettboden versehen. Einige Räume verfügen über Stuckdecken.
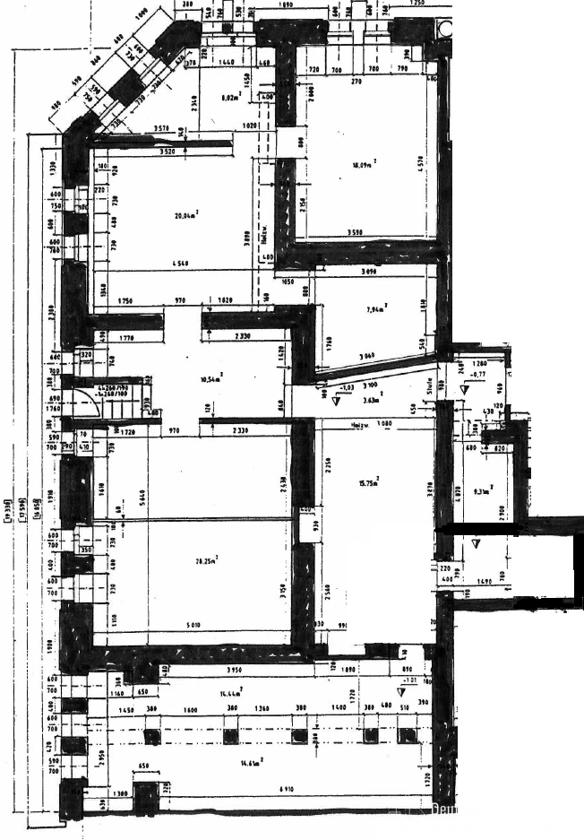
Die Einheit im Soutterain ist über einen separaten Eingang erreichbar und eignet sich als Lagerraum bzw. als Archiv.
Auch hier befinden sich eine Gäste-WC und Räume welche als Küche und Bad genutzt werden können.
Lage
Die Springerstraße befindet sich in einer der beliebtesten Wohngegenden Leipzigs. Die Nähe zum Park und die unmittelbare Nähe zur Innenstadt lassen viel Spielraum für unzählige Freizeitaktivitäten.
Im direkten Umfeld sorgen kleine Geschäfte und Einkaufsmärkte für eine breite Angebotspalette bei der Nahversorgung und überraschen mit manch Außergewöhnlichem. Wandeln Sie in den prächtigen Passagen und tauchen Sie in die freundliche und aufgeschlossene Atmosphäre der Messestadt und ihrer Menschen ein. Auch in Sachen Familienfreundlichkeit ist das Quartier gut aufgestellt. Kindertagesstätte und Schule sind fußläufig gut zu erreichen.
Deutsche Immobilienvermittlung +
Kontaktieren Sie uns. Wir freuen uns auf ein persönliches Gespräch
Deutsche Immobilienvermittlung Plus GmbH
Essener Str. 110
22419 Hamburg
E-Mail info@divplus.de


