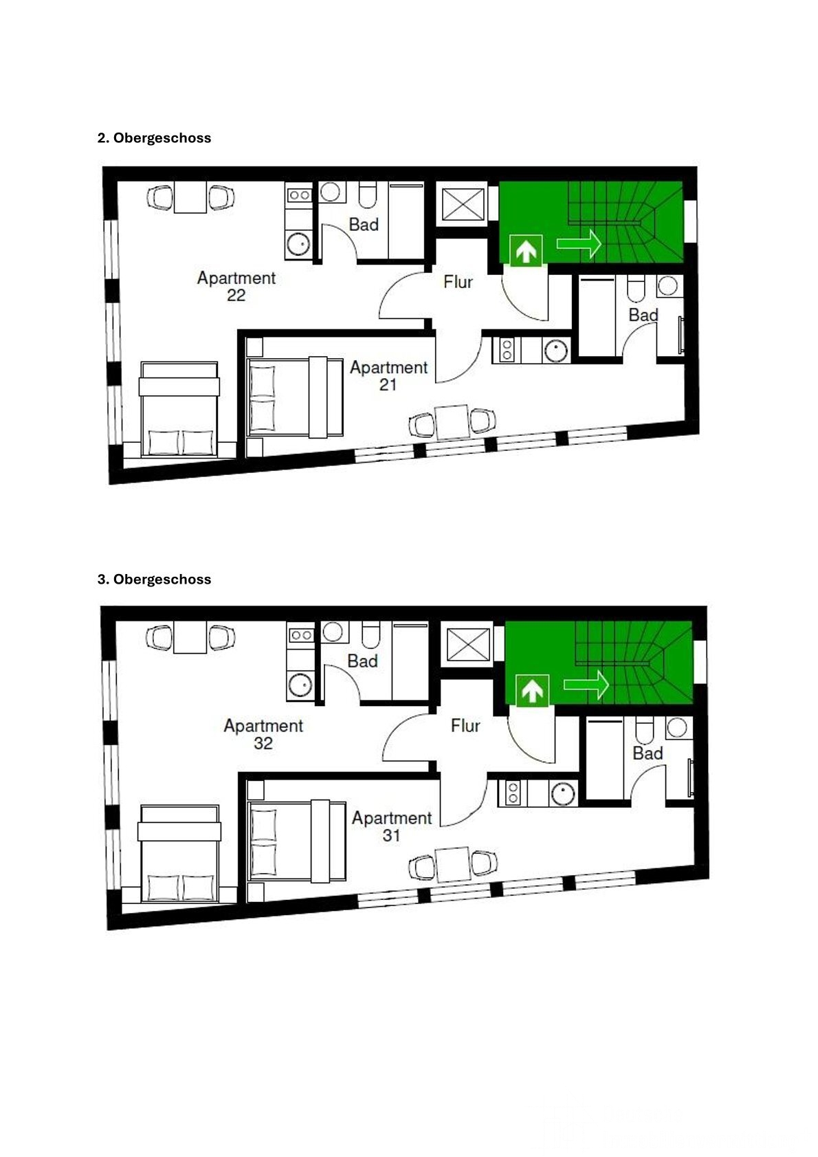
Diese Investmentimmobilie besteht aus einem langfristig vermieteten Einzelhandelsgeschäft sowie acht attraktiven Ferienapartments. Die Apartments sind komplett ausgestattet und modern eingerichtet. Auf dem Dach wurde eine Terrasse eingerichtet, die eine wundervolle Aussicht bietet.
Die Apartments haben in der Vergangenheit ca. € 180.000 Umsatz eingebracht. Für detaillierte Informationen zu den Mieteinnahmen für die Gewerbeeinheit senden Sie uns bitte eine Kontaktanfrage.
Beschreibung
Lage
Diese Immobilie befindet sich in der charmanten Kurstadt Bad Kissingen, bekannt für ihre heilenden Thermalquellen und ihr historisches Flair. Im Jahr 2021 wurde Bad Kissingen in die Liste des Weltkulturerbes aufgenommen. Die Stadt ist somit für Touristen und Kurgäste ein sehr interessanter Anziehungspunkt.
Die Parkanlagen, die Brunnen- und Wandelhalle sowie die Spielbank sind von der Immobilie aus fußläufig erreichbar. Dasselbe gilt für Restaurants und Cafés sowie für Geschäfte des täglichen Bedarfs. Die Lage der Immobilie ist für Besucher der Stadt daher äußerst vorteilhaft.
Bad Kissingen ist über die A7 und die A71 sehr gut mit dem Auto zu erreichen. Der Bahnhof befindet sich in der Nähe der Immobilie. Die Anreise wird damit sehr komfortabel.
Deutsche Immobilienvermittlung +
Kontaktieren Sie uns. Wir freuen uns auf ein persönliches Gespräch
Deutsche Immobilienvermittlung Plus GmbH
Essener Str. 110
22419 Hamburg
E-Mail info@divplus.de



