Bei dem Objekt handelt es sich um ein unter Denkmalschutz stehendes Gebäude, welches 1908 erbaut wurde und 2023 saniert wurde.
Hier entstanden elf Wohneinheiten welche durch hochwertige Materialien und modernen Wohnkomfort überzeugen.
Die Restaurierung und Sanierung erfolgte in Abstimmung mit der Denkmalschutzbehörde.
Beschreibung
Ausstattung
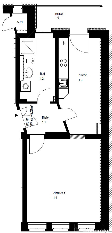
Diese schöne 1-Zimmer-Wohnung ist mit einem hochwertigen Parkettboden im Wohn- und Schlafraum ausgestattet. Das moderne Tageslichtbad verfügt über eine Dusche, einen Handtuchheizkörper, einen Waschmaschinenanschluss, einen großen Wandspiegel, sowie schicke Anthrazit-Fliesen. Die große Küche bietet Zugang zum hofseitigem Balkon und ist bereits mit einer Einbauküche ausgestattet. Deckenspots in Flur, Küche und Bad, Stuckdecken, Videosprechanlage sowie Fußbodenheizung runden die Einheit ab.
Kellerabteil vorhanden.
Lage
Das Objekt befindet sich im Leipziger Stadtteil Möckern und liegt nördlich des Leipziger Zentrums.
Einkaufsmöglichkeiten, wie z. Bsp. "Kaufland", Apotheken sowie medizinische Versorgungseinrichtungen befinden sich in unmittelbarer Umgebung. Die Anbindung an die öffentlichen Verkehrsmittel ist in wenigen Minuten fußläufig erreichbar und man gelangt in ca. 15 Minuten in die Leipziger Innenstadt. Gleichzeitig lädt der nahe gelegene Auensee sowie der Auenwald zu Erholung und sportlichen Aktivitäten ein.
Deutsche Immobilienvermittlung +
Kontaktieren Sie uns. Wir freuen uns auf ein persönliches Gespräch
Deutsche Immobilienvermittlung Plus GmbH
Essener Str. 110
22419 Hamburg
E-Mail info@divplus.de


