Das Gebäude wurde um 1935 erbaut, 2021 umfassend saniert und gehört zu der schönen Wohnanlage Fliederhof.
Beschreibung
Ausstattung
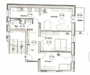
Diese schöne Wohnung ist mit hochwertigem Parkettboden in den Wohnräumen ausgestattet. Das schicke Tageslichtbad verfügt über eine ebenerdige Dusche und einen Handtuchheizkörper. Flur, Bad und Küche verfügen über Deckenspots. Über das Wohnzimmer erreichen Sie den Balkon. Fußbodenheizung in der ganzen Wohneinheit. Ein Keller ist ebenfalls vorhanden.
*Bitte haben Sie Verständnis dafür, dass wir keine Bilder von bewohnten EInheiten veröffentlichen. Die Bilder zeigen eine Referenzwohnung. Gern können Sie sich aber über den unten stehenden Link den 360-Grad-Rundgang zur Wohnung ansehen.*
Lage
Der Stadtteil Schönefeld zeichnet sich, neben den Vorzügen eines langsam gewachsenen Wohngebietes, insbesondere durch die hohe Freizeitqualität aus. So befindet sich beispielsweise der Mariannenpark, eine sehr schöne Grünanlage in Leipzig, nur ein paar Gehminuten vom Objekt entfernt. Einrichtungen zur Deckung des täglichen Bedarfs sind in Schönefeld ebenso vorhanden wie Kindergärten und Schulen.
Die Innenstadt Leipzigs ist bequem mit allen öffentlichen Verkehrsmitteln zu erreichen. Hauptbahnhof und Innenstadt sind nur ca. 2 km entfernt.
Deutsche Immobilienvermittlung +
Kontaktieren Sie uns. Wir freuen uns auf ein persönliches Gespräch
Deutsche Immobilienvermittlung Plus GmbH
Essener Str. 110
22419 Hamburg
E-Mail info@divplus.de


