Das 1994 erbaute Mehrfamilienhaus verfügt über 24 Wohneinheiten.
Beschreibung
Ausstattung
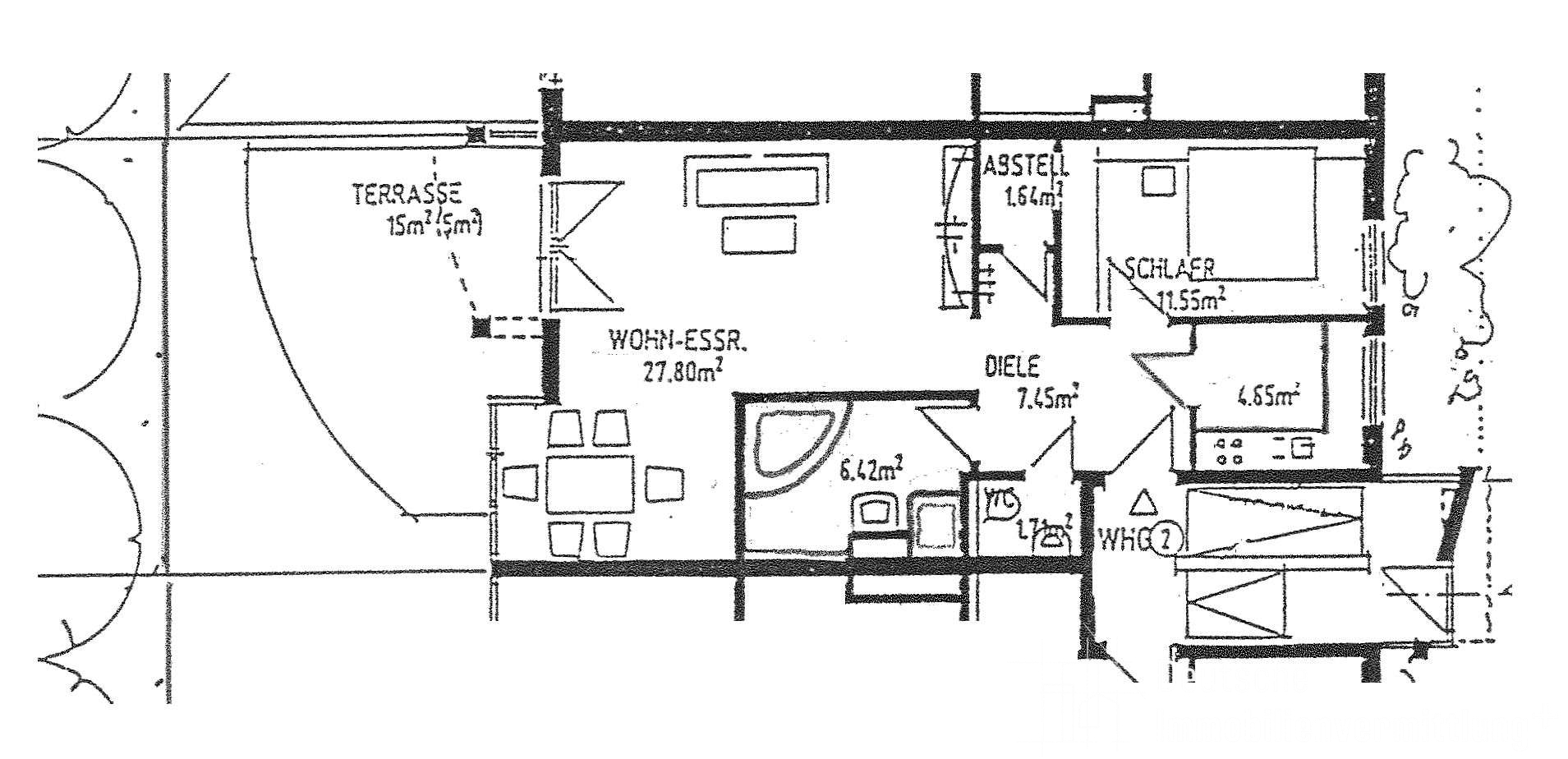
Diese hübsche 2-Zimmer-Wohnung befindet sich im Erdgeschoss eines gepflegten Mehrfamilienhauses. Die Wohnräume verfügen über Laminatboden, schickes Bad mit Wanne, Dusche und Handtuchheizkörper, separates WC, praktischer Abstellraum im Flur.
Das Wohnzimmer besitzt eine große Fesnterfront zur eigenen Terrasse.
Lage
Die Wilhelm-Busch-Straße 3 liegt im südlichen Teil von Markkleeberg, einer Stadt im Landkreis Leipzig in Sachsen. Markkleeberg zeichnet sich durch seine ruhige, grüne Wohnlage aus und bietet eine gute Anbindung an die Leipziger Innenstadt sowie an die Umgebung.
Das Objekt befindet sich in einem gewachsenen, vorwiegend von Einfamilienhäusern und kleinen Mehrfamilienhäusern geprägten Wohngebiet. Die Lage ist sehr familienfreundlich und bietet zahlreiche Freizeitmöglichkeiten. Der nahegelegene Markkleeberger See lädt zu Spaziergängen, Sport und Erholung ein. Der See und die angrenzenden Grünflächen bieten eine hohe Lebensqualität und Freizeitwert.
Die Verkehrsanbindung ist hervorragend: In wenigen Minuten erreicht man die Autobahnen A38 und A9, die eine schnelle Verbindung nach Leipzig und in die umliegenden Städte gewährleisten. Der öffentliche Nahverkehr ist ebenfalls gut ausgebaut, mit mehreren Buslinien, die direkt in die Innenstadt von Markkleeberg und weiter nach Leipzig führen.
Deutsche Immobilienvermittlung +
Kontaktieren Sie uns. Wir freuen uns auf ein persönliches Gespräch
Deutsche Immobilienvermittlung Plus GmbH
Essener Str. 110
22419 Hamburg
E-Mail info@divplus.de


